Meissnerhaus 2.0
Die Sanierung bringt neues Leben ins Herz Ehningens. Geplant sind:
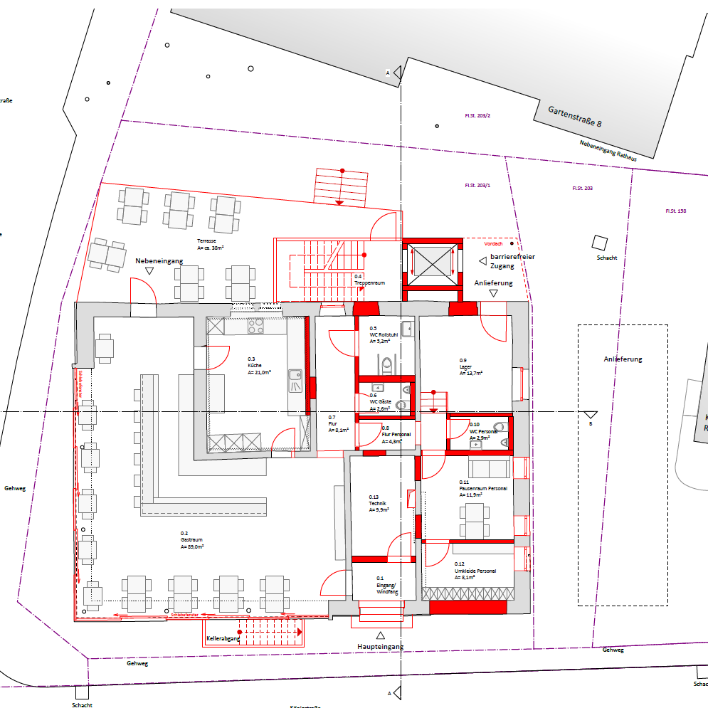
Eine Weinhandlung oder Kaffeerösterei jeweils mit Tagesgastronomie und damit ein attraktives Angebot im Erdgeschoss und dem historischem Gewölbekeller – ein Treffpunkt für Bürger und Besucher. Es gibt bereits Interessenten!
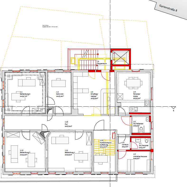
Praxisräume im Obergeschoss – für eine bessere medizinische Versorgung.
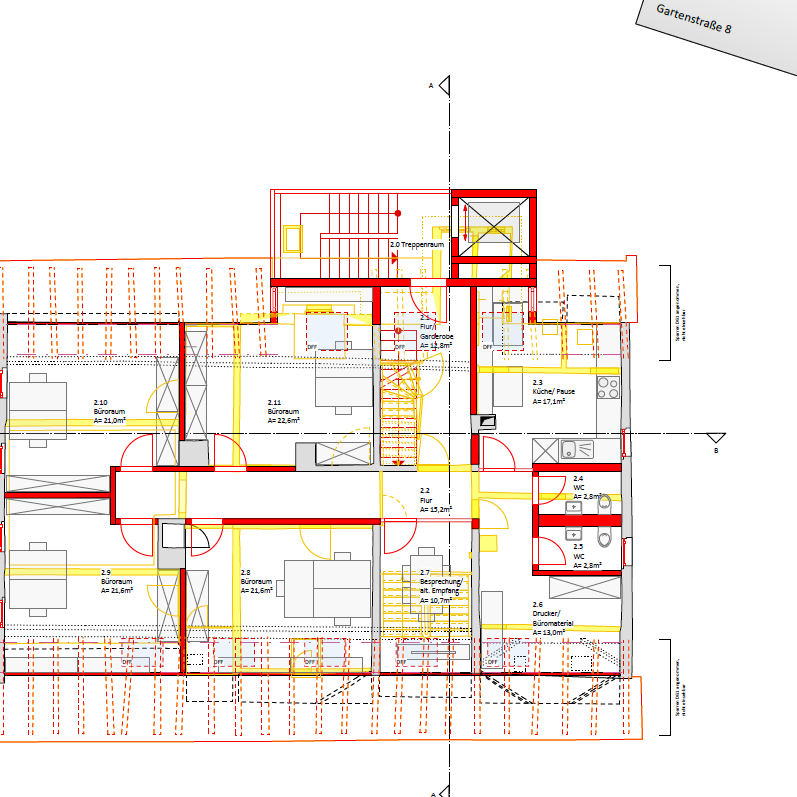
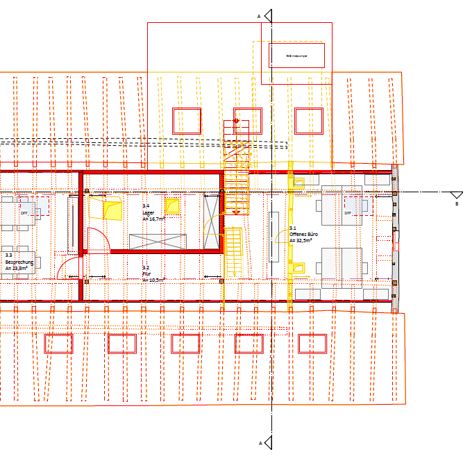
Moderne Büroräume unter dem Dach – für lokale Unternehmen und neue Arbeitsplätze.
(KI generiertes Bild)
Erleben Sie den historischen Gewölbekeller ...
Historischer Keller in neuem Glanz
Weinhandlung, Weinverkostung, Geburtstagsfeiern, Betriebsfeiern ...
(Originalbild leicht KI überarbeitet
01
Belebung der Ortsmitte
Der Erhalt des Meissnerhauses schafft einen Ort, an dem Begegnung, Kultur und Gemeinschaft lebendig werden. Das Grundstück Königstraße 27 liegt am Auftakt des Ortskerns, unmittelbar neben dem Rathaus. Es ist die einzige gemeindeeigene Fläche in dieser zentralen Lage, für die eine gewerbliche oder gastronomische Nutzung in Frage kommt, und ist
somit von hoher strategischer Bedeutung für die Ortskernentwicklung. Hier hat die Gemeinde die Chance, selbstgestaltend zu einem attraktiven Ortskern beizutragen. Wir sind
der Meinung, dass diese Investitionen in die Zukunft des Ortskerns gut angelegt sind.
02
Erhalt des Ortsbilds
Das 200 Jahre alte Meissnerhaus prägt das historische Erscheinungsbild Ehningens und ist im Gemeindeentwicklungskonzept „Ehningen 2035“ als besonders charakteristisch beschrieben. Sein Erhalt stärkt die Identität der Ortsmitte – als Pendant zum „Alten Löwen“
und als attraktiver Eingang zur Ortsmitte.
Unter dem Gebäude befindet sich einer der größten Gewölbekeller Ehningens. Der ca. 250 Jahre alte Keller ist aus unserer Sicht von historischem Wert und damit besonders erhaltenswert.
03
Wirtschaftlich sinnvoll
Sanieren statt abreißen spart Geld und erhält Werte! Die Machbarkeitsstudie zeigt: Das Gebäude ist erhaltenswert, der Gewölbekeller in sehr gutem Zustand. Die Sanierungskosten liegen geschätzt bei 3,1 bis 3,4 Mio. EUR.
Vollständig kostendeckend ist das Projekt bei einer Vermietung der Flächen zu einem durchschnittlichen Mietpreis von 16 - 18 EUR/
m². In den ersten ca. 12 Jahren sind die zu erwartenden jährlichen Kosten höher als die Einnahmen. Zur Sicherheit plant die Gemeinde
dafür einen Zuschuss von insgesamt ca. 400.000 EUR über die Jahre verteilt. Etwa ab dem 13. Jahr werden dann positive Jahresergebnisse erzielt. Das Besondere: Dieser Zuschuss fließt nach etwas mehr als 25 Jahren vollständig durch die Mieteinnahmen an die Gemeinde zurück. Im Gegensatz zu anderen Projekten der Gemeinde deckt dieses Gebäude seine Kosten durch eigene Einnahmen und schafft einen dauerhaften, wertbeständigen Sachwert für unsere Gemeinde.
Eine Abwicklung über die KWE könnte die Rentabilität weiter steigern. Bei einer gewerblichen Vermietung wäre die Umsatzsteuer
aus Investitionen als Vorsteuer abziehbar.
Fazit: Es ist eine Investition in ein Projekt, das sich langfristig bezahlt macht!
04
Gut für Klima
und Umwelt
Erhalten statt abreißen schützt Klima und
Ressourcen und spart Energie und CO₂.
Ein Abriss würde große Mengen an Bauschutt,
Transport- und Entsorgungskosten verursachen. Sanieren heißt nachhaltig handeln und
Verantwortung übernehmen. Ein starkes Zeichen für Klimaschutz, Ressourcenschonung und verantwortungsvolles Bauen.

Zeichnungen aus Konzept Fa. Jako Baudenkmalpflege
für die Gemeinde Ehningen
Die Gastronomie im Erdgeschoss wird zum neuen Anlaufpunkt in Ehningen.
Ein modernes Ambiente im historischen Haus schafft Atmoshäre und lädt zum Verweilen ein.
Genießen Sie im Keller Weine und kleine Häppchen.
Der historische Gewölbekeller ist bestens geeignet um Weine zu verkosten und die eigenen Bestände aufzufrischen.


Zeichnungen aus Konzept Fa. Jako Baudenkmalpflege
für die Gemeinde Ehningen
Im Obergeschoss könnten
Praxisräume für Ärzte, Logopäden, Therapie etc. sein.
Im Obergeschoss gibt es Möglichkeiten für ein medizinisches oder therapeutisches Angebot. Auch eine Rechtsanwaltskanzlei oder ein Steuerberater würden dort Platz finden.
Im Dachgeschoss
1 & 2 könnten Wohnungen oder Büros entstehen.
Viel Platz für Büros oder auch ein Wohnraumangebot.


Zeichnungen aus Konzept Fa. Jako Baudenkmalpflege
für die Gemeinde Ehningen
Das Meissnerhaus 2.0 bietet große Chancen und einen hohen Nutzen für Ehningen!
Es wird Zeit, lassen Sie uns Ehningen modernisieren.